Dráma v troch dejstvách. Ako primátor O. Klein v r. 2015-2017 predal developerom pozemky pôvodne určené na mestské nájomné domy na Andovskej ulici
V dnešnom pokračovaní nášho seriálu o novozámockom sídlisku Západ sa vrátime do rokov 2015-2017. Neuplynul ani rok od nástupu primátora Kleina do úradu keď sa rozhodol že Mesto už nebude ďalej stavať žiadne bytovky na sídlisku Západ II/2 a rovno predá pozemky developerom, veď tí už budú vedieť ako s nimi naložiť a tiež akisto ocenia jeho veľkú snahu. Priblížime si tri dejstvá tejto drámy, v ktorej sa spojili všetky typické ingrediencie novozámockej komunálnej politiky: ľstivá úplatnosť, ľahostajnosť k budúcnosti mesta a všeobecná nekompetentnosť...
Dejstvo prvé: 8. zasadnutie MsZ NZ dňa 16.9.2015. Začiatok kauzy.
Primátor Klein a jeho poslanecká družina predviedli majstrovský kúsok – ako elegantne odpísať verejný záujem v prospech developerského biznisu. Pozemky, ktoré mesto 20 rokov plánovalo na vlastné nájomné byty pre občanov bolo treba urýchlene predať lebo Mesto práve nemalo peniaze. Namiesto toho, aby mesto pokračovalo v projekte sociálneho bývania, zvolili si cestu rozkúskovania budúceho sídliska a jeho predaj developerom, ktorí tam postavia súkromné bytovky s trhovou cenou. Ako to už býva, zlý úmysel sa aj tu snúbil s právne zmätočnou hybridnou zmluvou (zmluva o budúcej kúpnej zmluve + nájomná zmluva + progresívne zdaňovanie. Asi vrcholom cynizmu bolo konštatovanie o tom ako "obyvatelia čakajú už 20 rokov" ako keby tí nečakali na byty ale na to aby sa mesto zbavilo pozemkov... Na základe tohoto uznesenia sa v období 26.10.2015-18.7.2017 verejná obchodná súťať opakovala dvakrát osve na pozemky A, B, C za cenu podľa znal. posudku 55 Eur/m2 a potom ešte dvakrát na spojené pozemky za zníženú cenu 25 Eur/m2. Keďže skutočná nákupná cena zrejme obsahovala aj úplatok poistený vo forme záväzku začať stavať do 18 mes. a skolaudovať stavbu do 36 mes - oba termíny záviseli od stavebného úradu kontrolovaného primátororm a rovnako on rozhodoval aj o vyviazaní z tohoto záväzku) nikdy sa do týchto VOS nikto neprihlásil.

Video z časť 4/6. Sledujte od 15:57
Primátor O. Klein: Poprosil by som ďalší bod, bod číslo 18. Nech sa páči pán Závodský
JUDr. Závodský: Majetkoprávny odbor Mestského úradu predkladá Mestskému zastupiteľstvu návrh na schválenie podmienok obchodnej verejnej súťaže na uzavretie zmluvy o budúcej kúpnej zmluve na parcele číslo 1918/1 zastavené plochy a nádvoria o výmere 65 053 m2 vedeným okresným úradom na liste vlastníctva 1 ako výlučné vlastníctvo mesta. Riešené územie - ide o sídlisko Západ 2 Andovská ulica - je o výmere 7 800 m2, ktoré navrhujeme rozdeliť na tri rovnomerné časti o výmere 2600 m2. Výmera tvar a poloha odpredávaného pozemku sa upresní po zameraní geometrickým plánom na základe výsledkov verejnej obchodnej súťaže, konkretizovaného projektového riešenia, respektíve podkladov upresnených podľa požiadaviek príslušných odborných útvaru mestskej úradu. Geometrický plán úspešný navrhovateľ vyhotoví na vlastné náklady. Pozemok bude vyčlenený z riešeného územia o výmere 2600 m2. Minimálnu navrhovanú cenu nehnuteľnosti navrhujeme určiť z naleckým posudkom.
Ďalej v materiáli nájdete podmienky obchodnej verejnej súťaže, ktoré sme pripravili. Asi tá najdôležitejšia časť, opäť zdôrazňujem, že je vo vašej kompetencii panie poslankyne, páni poslanci, tieto body respektive podmienky meniť, doplňať, rušiť. Ale poprosím by som, vysvetlil by som aspoň základnú ideu.
Chceli by sme po podpise zmluvy o budúcej zmluve uzatvoriť najomnú zmluvu s takzvaným progresívnym zdaňovaním. Zmysel z tohto je v tom, že na obdobie od podpisu budúcej kúpnej zmluvy do vydania stavebného povolenia, by ten úspešný uchádzač platil dvojnásobok zónoveho nájomného, čo v danej lokalite je 8 euro za m2 na rok. Na obdobie výstavby by sa nájomné znížilo na polovicu riadneho nájomného, to je na 2 eurá, a maximálne však po dobu 24 mesiacov.
Po uplynutí tohto obdobia by sa platilo riadne nájomné. K tomuto návrhu sme pristúpili z dôvodu, aby sa nám nezopakovala situácia, že úspešný uchádzač, ktorý vysúťaží nejaký pozemok za účelom výstavby, tam stavať nezačne. Respektíve, ten čas sa naťahuje.
Tento systém má toho víťaza inšpirovať k tomu, aby začal stavať čím skôr, aby to mal čím skôr dokončené. Potom, či už požiadajú uzávretie zmluvy, v podstate nám je jedno, lebo budeme to mať poistené tým nájomným. K niektorým základným podmienkám alebo ideálom, s ktorými sme vychádzali. Ako prvé poviem, že navrhujeme vybudovať na začiatku 3 až 5 podlažné bytové domy, s tým, že každý jeden bytový dom by mal vlastné kontajnerisko, parkovisko a by bolo ohradené buď živým alebo zeleným plotom, takže snažíme sa zaviesť úplne nový systém, či štýl bývania.
Určite viete, že to územie ešte pokračuje ďalej. Celý koncept, ktorý máme k dispozícii, máme k dispozícii už nejaké grafické návrhy, počíta s tým, že tie podlažia sa budú postupne znižovať až na úroveň dvoch podlažných, aby sa ten charakter nejako zachoval, aby sme nevybudovali len ďalšie sídlisko. Hovorím, čo sa týka ostatných podmienok, je na uvážení pani poslankýň a pánov poslancov, ako sa k tomu postavia.
Toto je návrh, ktorý si dovolím povedať, že tú základnú úlohu, ktorú sme si dali, že pokračovať vo výstavbe, začať s novým charakterom nazvem to zaujímavého bývania, kde tí obyvatelia budú mať to svoje súkromie, budú mať svoj park, o ktorý sa môžu starať, budú mať zabezpečené parkovanie, budú mať vlastné kontajnerisko, je niečo, čo sme chceli dosiahnuť. Čo sa týka úloh mesta v tomto projekte, navrhujeme, aby mesto vybudovalo prístup, hlavnú prístupov komunikáciu z tej Andovskej ulici a verejné osvetlenie, pričom všetky ostatné náklady na tvorenie infraštruktúry by bolo v režii toho víťaza. Úprestným navrhujeme vyhlásiť tri obchodno-verejné súťaže.
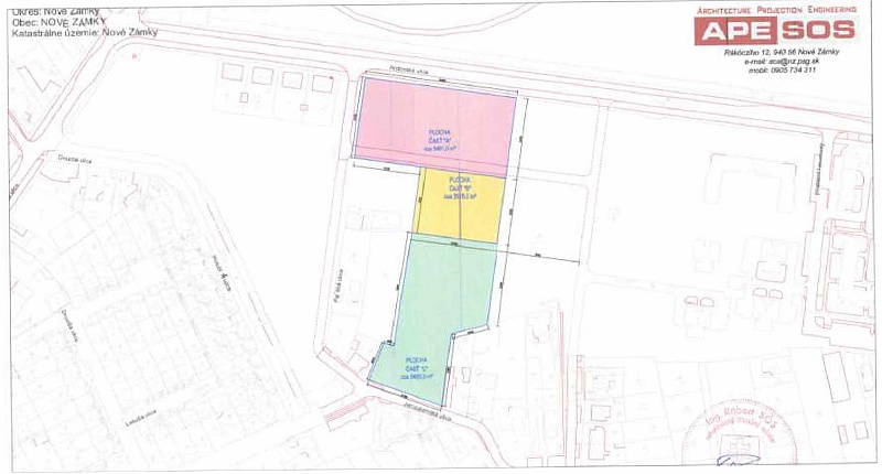
Ako prílohu máte mapku, kľudne si ich môžete označiť ako A, B, C. Z toho dôvodu, ešte doplním, z toho dôvodu sme nepristúpili k súťaženiu celej oblasti, aby sme sa vyhli tým okolnostiam, to nazvem, že súťažiaci si vyberú tie najlukratívnejšie pozemky, lokality, tam sa nejaké domy vybudujú a ostatné pozemky ostanú nevyužité. Ďakujem na začiatok toľko, opäť na vaše prípadné otázky veľmi rád odpoviem.
Primátor O. Klein: Otváram rozprávu k tomuto bodu.
posl. G. Katona: Pán vedúci, prosím vás. My ideme vyhlásiť obchodno-verejnú súťaž na uzavretie zmluvy o budúcej kúpnej zmluve. Z tejto zmluvy nám vznikne záväzok predať a budúcemu kupujúcemu kúpiť. Ako chcete donútiť budúceho kupujúceho, ktorý tú obchodnú verejnú súťaž vyhrá, uzavrieť nájomnú zmluvu?
JUDr. Závodský: Po prvé to bude v podmienkách zmluvy o budúcej zmluve a tak, ako sú podmienky tým progresívnym zdaňovaním nastavené, bude to jeho záujem.
Ak si všimnete, v podmienkach je aj napísané, je to podmienka, ktorá je zavedená a dlhodobo sa aplikuje, že ten úspešný uchádzač zaplatí už 80 % kupnej ceny pri podpise. Či to bude 80-60, znovu je to na diskusiu, ide nám o to, aby sa to podarilo. Takže ten úspešný uchádzač už 80 % zaplatí a potom bude platiť nájomné.
A potom, keď to už nájomné bude platiť 60 rokov, tak bude platiť 60. A okrem toho zákon jasne hovorí, že my môžeme vyzvať toho budúceho kupujúceho na uzatvorenie zmluvy.
posl. G. Katona: Takže keď tomu mám rozumieť správne, ja vyhrám tú obchodnú verejnú súťaž, zaplatím vám 80 % ceny nehnuteľnosti, a potom ešte plus mám na to, na čo mám predkupné právo už zo zmluvy, uzavrieť nájomnú zmluvu a platiť vám ešte nájomné.
JUDr. Závodský: Nie, nebudete uzavrieť nájomnú zmluvu, platiť nájomné bude z účasťov zmluvy. A ako som povedal, je to presne preto, aby ste tam začali stavať, aby to bolo postavené. A keď ja tú nájomnú zmluvu neuzavriem? Vy neuzavriete nájomnú zmluvu, bude to v podmienkách zmluvy o budúcej zmluve.
Na ten čas, kým vybudujete alebo kým to budete stavať, zaďaľ budete platiť nájomné. Myslím, že je to úplne v poriadku.
Ing. Velecký: Ja by som len toľko povedal, že v podstate tá podmienka 80 % zaplatenia pri uzatvorení kúpnej zmluvy, tá trošku nestimuluje týchto uchádzačov o to, aby teda niečo postavili, myslím, tých investorov. Ale opačne by sme to postavili, že by oni podpísali zmluvu o budúcej kúpnej zmluve, že my im predáme pozemok po kolaudácii tej bytovky alebo proste toho objektu, s tým, že toto by platili bez buď minimálneho zaplatenia alebo bez zaplatenia tých 80 %. Aby ich to stimulovalo.
Jednak je to pomoc mesta, že nepotrebujeme, aby sme ich nejakým spôsobom nehnali do nejakých investícií, že 80 % musím zaplatiť hneď pri uzatvorení kúpnej zmluvy, ale mali by to progresívne nájomne s tým, že kým nezačne stavať máte dvojnásobok zóny, potom, počas doby výstavy, čo bude 24 mesiacov, bude len 50 % zóny a od ukončenia až do uzatvorenia kúpnej zmluvy by bolo normálne zónové nájomne. Čiže tým by sme ich tlačili tomu, aby čím skôr postavili tú bytovku, aby sa oni snažili proste urýchliť ten proces. Aby nie my sme ich vyzývali, lebo máme také skúsenosti, že oni ťahajú ten čas a my si nemôžeme pomôcť.
Oni zaplatili tých 80 % a tým preňho to nejakým spôsobom haslo. Čiže toto by ho tlačilo na to, aby dokončil tú výstavu čím skôr a my by sme mali to územie zastavané a proste pohla by sa tá výstavba.
posl. G. Katona: xxx to čo je predložené ako návrh s tým absolútne nekorešponduje. Nájom je diametrálne odlišná vec, nie len to, ale aj právny titul, keď raz ja mám zmluvu o budúcej kúpnej zmluve, tak raz niekedy kúpim a dovi dopo.
A nájomné, to je zase diametrálne odlišný vzťah, že keď si, to je za užívanie cudzej veci.
JUDr. Závodský: Nie, pán poslanec, kľudne do zmluvy o budúcej zmluve môžete dať riešenie situácie, ktoré budú, alebo prebiehajú, nastanú do uzavretia riadnej kúpnej zmluvy. Píšu sa všelijaké podmienky, vy to určite viete. Nevidím žiadny problém v tom, aby sme tam toto progresívne nájomné dali. Je to len pre dobro veci. Tak, ako to povedal pán inžinier, niekto by si zaplatil 80 % ceny za pozemok a nikdy by tam stavať nezačal.
posl. G. Katona: Po podpise budúcej kúpnej zmluvy sa uzatvorí nájomná zmluva.Tak sa rozhodnite, či to bude v jednej zmluve, alebo tu budú dve zmluvy, lebo tu sú dve zmluvy.
JUDr. Závodský: Bude to v jednej zmluve a nechám na zvážení cteného zastupiteľstva, či ten výťaz zaplatí 80 pecent, alebo menej. Naozaj hľadali sme spôsob, ako zabrániť tomu, aby tam, aby sa, aby niekto kúpil pozemok a tam nezačal 5-10 rokov stavať a potom tam - určite dobre poznáte lokalitu Andovskej - je tam neporiadok, sú tam náletové dreviny, takže hlodavce, takže hľadáme také riešenie, ktoré bude najlepšie.
posl. G. Katona: Pán doktor Schwarz, prosím, aké bolo stanovisko majetko právnej komisie k tomuto predloženému materiálu?
posl. Schwarz: xxx (nerozumieť, mimo mikrofón)
posl. Bohátova: Ja neviem, pán Závodský, že prečo tých 80 % z tej kúpnej ceny by sa malo uhradiť pri podpísaní zmluvy o budúcej kúpnej zmluve? Myslím si, že kto už má nachystaných 80 % z tej kúpnej ceny, tak v pohode zaplatí aj 100 %, lebo chce začať stavať. A keby sme my dali, že zaplatí normálne kúpnu cenu, a v zápätí mu dáme ešte, že bude platiť ten nájom, aby sme ho prinútili, aby vôbec začal teda stavať, tak ja si myslím, že nič zle neurobíme, lebo my chceme, aby sa vlastne tá meská kasa aj s týmito kapitálovými príjímami naplnila. Kto už zaplatí 80 % a samozrejme, nemôže to začať alebo ísť do tej súťaže človek, ktorý, alebo teda podnikateľ, ktorý nemá finančné zdroje. Tam sa nedalo dať tých 100 %?
pos. I. Katona: Ja by som začal k tomuto bodu od všeobecného k jednotlivému. Ja opätovne mám problém s tou minimálnou sumou, že je učená znaneckým posúdkom, než by som nedoveroval, znal som ale poznám variabilitu v znaleckých posudkoch. Taktiež minimálna navrhovaná zábezpeka, tam je myslím nesprávne napísaná 10 % z navrhovanej sumy, tu by som navrhoval stanoviť pevnú sumu. Potom ja tu vidím istú diskrepanciu, čo sa týka názvov. Raz ho máme budúceho predávajúceho, budúceho kupujúceho a zrazu mám potom kupujúci. To sú dva samostatné odlišné právne inštitúty.
Minimálne to je vidno v bode B.2/. Kupujúci v podstatným spôsobom porušujú ktorékoľvek ústavné kúpnej zmluvy. Neviem, zatiaľ sme nemali ani len kúpnu zmluvu podpísanú. Nápad je to absolútne dobrý, z hľadiska ekonomického. Len z hľadiska právneho realizáciu v tejto forme, ako je prednesená, som si nie celkom istý, či by to bolo dobre. Aj to progresívne, nájomné, určite áno, ale bolo tam, myslím, aj uvedené, že vlastník má predkupné právo na rozostavanú stavbu, ktorá v čase podpísu zmluvy ešte nebude existovať. Vieme, ako je rozostavaná stavba definovaná podľa zákonom katastrí nehnuteľnosti...
Ja si myslím, že by bolo dobre sa zamyslieť, povedzme, mi to len tak ma napadlo, z toho, čo som si tu vypočul, či by sme nemohli použiť inštitút, napríklad, ale to je čisto teoretický nápad teraz - zmluvy o kúpe prenajatej veci, je to podľa obchodného zákonníka. Ja by som si dovolil navrhnúť, ak by to bolo možno priechodné, o tomto bode nehlasovať a skúsiť to. Ekonomický zmysel, ktorý je absolútne bezproblémový a dobrý, pretaviť do právne priechodného a správneho výrazu, významu a správnej formy zmluvy.
Nech sa nedostajeme do nejakých problémov v budúcnosti.
viceprimátor Štefánik: Ďakujem pekne. Skúsim to nejak zhrnúť. Máme ten pozemok na Andovskej.
Je tam bordel, burina, bezdomovci potkany. A chceme ho riešiť. Teraz sa dá návrh na vyhlásenie VOS-iek Troch. Môže to kúpiť jeden človek, dvaja, traja. Teraz sa niekto prihlási, vyhrá. Následne musí podpísať zmluvu o budúcej zmluve. Ak ju podpíše, tak zaplatí 80 % z tej navrhovanej ceny, ktorú navrhol.
A potom podpíše nájomnú zmluvu, ktorá ho má motivovať. Ktorá bola len preto tam daná, aby ho motivovalo k tomu, aby to čím skorej postavil, aby sa nestalo. Že niekto to kúpi. A bude to tam zase ďalších 6, 10, 15 rokov stáť, tá burina. Takže ja si myslím, že tento nástroj je veľmi dobrý k tomu, aby sme motivovali toho investora, aby to čím skorej postavil. A následne podpísal riadnu zmluvu. Doplatil zvýšných 20 %. A všetci môžeme byť šťastní, že sme sa zbavili buriny. A postavili sme niečo nové, alebo investor postavil niečo nové. Nejaký nový štýl bývania pre občanov mesta.
Posl. Bohátová: Ja by som pre nás, čo se týka informovanosti skúsila... Vieme v tejto časti, aká je tam zónová cena? Lebo skôr by sme išli od toho, že nie, aby sa tá cena odvíjala podľa toho znaleckého posudku. Ale skúsila by som, ak by pán Zavodsky vedel povedať, že aká je to zóna a aká je tam cena za meter štvorcový?
JUDr. Závodský: Pani poslankyňa, cena je 60 euro za metr štvorcový.
Posl. Bohátová: 60 eur. Tak ja si dovolujem návrhnúť, aby sme nemuseli ísť cez znalecký posudok, aby sme vychádzali z ceny 80 eur za metr štvorcový... Tak vyskúšať to môžeme, len keď dáme znalecký posudok. Keď dáme znalecký posudok, tak podľa toho, ako povedal pán Zavodsky, je tam burina, je tam, ja neviem, smetisko. Teda, ty si povedal, tak neviem, ako ten znalec, síce nie som v odbore teda znalá v tomto znaleckom, ja viem, že plocha záleží a takisto lokalita, ale takisto sa nemusí strafiť, môže zohľadiť aj tieto okolnosti, čo sa týka možno teda toho neporiadku. Ja neviem, ako to tam ovplyvňuje, tú výšku tej výslednej ceny, v tom znaleckom posudku, ale keď je tam cez 60, tak dobre, tak poďme na 70 eur, keď myslíte, že 80 je tak strašne veľa, ale skúsme zadefinovať tú jednu cenu, jednu sumu za meter štvrcový a súťažme to a určite sa dopracujeme k nejakému výsledku.
Veď zase, keď to už toľko bolo v takom stave, akom to je, tak si myslím, že nejaký mesiac alebo dva mesiace, pokiaľ prebehne tá súťaž, toľko času už naozaj máme a v tom prípade zase zábezpeka by sa odvíjala od tejto orientačnej ceny, ktorá by mohla byť uvedená. Čiže zase konkrétna suma 10 000 eur za jeden pozemok ako zábezpeka. Takže ja navrhujem 70 eur za meter štvrcový plus zábezpeka 10 000 eur. A čo?
Primátor O. Klein: Ešte len toľko, ja som si to tak narýchlo teraz prerátal, pri jednom pozemku pri zónovej cene 60 eur, jeden pozemok bude stáť zhruba 160-170 tisíc eur. Ja si neviem predstaviť, že by sme to za toľko dokázali predať. Keď áno, zaplať Pán Boh, lebo to by sme mali za tri pozemky 480 tisíc, aby nám tam zostalo ešte niekoľko hektárov.
JUDr. Závodský: Pani poslankyňa, ešte raz len z opatrnosti upozorňujem na to, že tieto pozemky sa budú predávať za účahom výstavby. Výstavbia a bývania, hlavne pre obyvateľov mestna Nové Zámky.
Ak tam nastavíme vysokú cenu, tá cena sa premietne do ceny tých bytov. Takže...
Posl. Bohátová: Pán doktor, ale zase na druhej strane zoberte, že ten, kto postaví tie byty, budú tie byty v jeho vlastníctve. A on bude vedieť naklada s tými bytmi, či už ich bude dávať do nájmu, alebo ich bude predávať do osobného vlastníctva.
Čiže ja si myslím, že ten, kto sa na to dá, že pôjde stávať nejakú tú bytovku, alebo neviem koľko poschodový dom, má určite financie na to, aby vedel vstúpiť do tejto súťaže. A kto nemá, tak po toho sme nemali... Zmena územného plánu a neísť do troj- až päťposchodových domov, lebo zase bežne pod individuálnu bytovú výstavbu sa tie pozemky rátajú, teda v takjto cene pohybujú v Nových Zámkoch. Tak ja ako neviem, ja nechcem, aby sme išli pod nejakú cenu, a len preto, že tam nejaký súkromík... To nie je, že ideme stávať bytovky zo štátneho fondu rozvoja bývania, čo je zase tiež rozdiel.
Toto bude súkromný majetok toho, kto tam tieto byty postaví. Ako s nimi naloží, tak to už bude jeho otázne, že aký on tam dá nájom, že či bude chcieť, aby sa mu náklady vrátili, ja neviem, za 5 rokov, alebo bude chcieť, aby sa mu vrátili za 30 rokov, tak v tom prípade dá ten nájom určite nižší.
Posl. I. Katona: Ja sa snažím naozaj pochopiť ten materiál, ale mám jeden odsek, trošku zarazil, aby som ho poprosil vysvietliť. Je to na strane 59, druhý odsek zdola, ja ho prečítam. "V prípade prevodu vlastníctva na 3. osobu 3. osoby, kupujúci je povinný preniesť na budúceho kupujúceho všetky povinnosti, ktoré mu sú zatvorené kúpnej zmluvy, územného rozhodnutia a stavebného plne vyplývajú, a budúci kupujúci je povinný tieto záväzky pre seba ako záväzné bez výhrad prjiať." Veď my ideme súťažiť, ako som to pochopil, sme zmluvo o budúcej kúpnej zmluve. To znamená, že budúci kupujúci. Ale teraz kto je ten kupujúci, ktorý prevede na 3. osobu, ktorou bude budúci kupujúci, nerozumiem tomu.
JUDr. Závodský: Pán poslanec pravdepodobne tam mal byť budúci kupujúci, že?
Posl. I. Katona: Ale budúci kupujúci nemá čo previesť, lebo to ešte nemá. Ale bude mať budúcnosť. A keď to budúcnosť bude mať, tak už je potom môj problém, čo ja s tým spravím. Potom je už k... že nie celkom rozumiem právnemu duchu tohto materiálu, ekonomickému áno. Ale právnemu nie.
Posl. Török: Ja sa prikláňam k názoru Majetko právnej komisie s tým, že si vie predstaviť, že aby sme konkretizovali zábezpeku. Tu odznela suma 10 tisíc eur, nech je 10 tisíc eur. To si vieme predstaviť. Na druhej strane navrhujem to, aby sme vycházali zo znaneckého posúdku. Jednak to odôvodňujem tým, že v tejto lokalite máme eminentný záujem, aby sa niečo udialo. Nechceme teraz predlžovať a vyhlásovať každý porok jednu súťaž. Lebo zrejme to by nás čakalo, keby sme tu ako tú minimálnu cenu zvýšili na tie spomínané sumy, ktoré tu už boli spomínané. Aj tak trh rozhodne o tom, že či bude za túto cenu záujem, respektíve, keď niekto bude mať záujem, akú cenu ponúknie za túto lokalitu.
Neznamená to, že tu bude minimálna cena, ale to bude znamenať, že môže ponúknuť takú, jakú sa mu proste oplatí.
Primátor O. Klein: Ešte, ak dovolíte, ja len takú poznámku k tomu, čo povedal pán G. Katona, že postavme to my. Je tam ešte časť pozemku Gabi, o ktorej možno málo kto vie, že ako to vlastne je. Medzi týmto pozemkom, o ktorom sa teraz bavíme, teda týmito troma pozemkami, je ešte jeden pozemok, ktorý vlastne nie je dostávaný. Kolegovia možno potvrdia, my pripravujeme práve materiál, aby sme do januára 2016 mohli odovzdať pripravené projekty a uchádzať sa o podporu štátneho fondu rozvoja bývania.
Tie byty, ktoré momentálne máme na Andovskej ulici, ja si myslím, že sú... tie nájomné nereálne vysoké. A práve preto, že v minulosti sa to stavalo z vlastných prostriedkov a nie z prostriedkov štátneho fondu, my sme tam navrhovali zástavbu ďalšej bytovky, kde by boli možno aj pre vozíčkárov, alebo proste pohybom ozmedzeným, kde by sme mali možnosť dosiahnuť podporu až 95 % na výstavbu. Čiže tento materiál tiež dostanete do budúcna.
Samozrejme, vždy je lepšie, keby sme si to vedeli sami stavať, ale žiaľ, na to prostriedky nemáme. Problém je len ten, že obyvatelia, ktorí sú tam, ale hlavne tí, ktorí prišli o domy len preto, že tam mala byť zástavba, už dneska je to 20 rokov, čo tam stoja stromy, bordel, kríky a nestavia sa. Takže myslím si, že aj tento materiál, pozerajme na to tak, že chceme konečne ukončiť tú etapu výstavby, ktorá už bola plánovaná tam pred 15-20 rokmi.
Takže mesto sa uchádza o nejakú podporu, aby dokázalo dokončiť ten projekt, ktorý už bol dávnejšie schválený a plus máme nejaké voľné pozemky, na ktorých by sme chceli niečo robiť. Jednak, aby sme si naplníli aj nejaké samozrejme príjmy, ale hlavne, aby to okolie bolo také kultúrne a obyvateľné pre všetkých, čo sú tam na okolí.
Posl. G. Katona: Ja rozumiem tejto požiadavke, rozumiem tomu, pán primátor, čo ste povedal, ale neviem sa stotožniť s tým, že predajme to už len, aby sme to predali za akúkoľvek cenu, len nech to niekto zoberá a niečo s tým robí. Lebo to je tu teraz na stole. To je tu teraz na stole.
Takže ja by som navrhoval, o uvedenom materiále nehlasovať, stiahnuť ho z rokovania a po prerokovaní v majetkoprávnej komisii a po prípravení seriózneho dokumentu a zabezpečenia práv a povinnosti zmluvných strán, opätovne tento predložiť na rokovanie na najbližšie zastupiteľstvo. Lebo v tejto podobe, ako to je, mám ja silnú obavu, že po právnej stránke tu budú značné problémy. Nech to kúpi akýkoľvek investor.
Posl. Bohátová: Ja by som teda navrhovala, ja pri týchto okolnostiach, ktoré sú tu, tiež veľmi ťažko sa viem stotožniť s tým, že ideme predávať niečo za znalecky posudok, aj keď pán Katona, teda pán Závodský hovorí, že áno, komora znalcov a neviem čo všetko. Ale pri všetkej úcte, neviem kvázi takú biankozmeňku podpísať tým hlasovaním, že neviem, za koľko bude.
Lebo už sa nám stalo v minulosti, že bolo odsúhlásane, že za ználecky posudok niečo ideme predať, a nakoniec sme boli rozčarovaní, že aká je to vysoká cena. Ale zase môže byť aj opačne, že potom my budeme rozčarovaní, že aká je to nízka cena z toho ználeckého posudku. Ak by prešlo ten návrh, že to budeme rokovať najbližšie, tak dovtedy by sme mohli aspoň orientačne mať informácie o tom, aká je cena v tom ználeckom posudku za meter štvorcový. Ja si myslím, že to nič zlé nechceme.
Posl. Török: Jednak ja návrhujem, aby rozhodne, aby sme o tomto návrhu tu dnes hlasovali a ďalej navrhujem aby by sme ukončili diskusiu k tejto téme.
Primátor O. Klein: Poprosil by som teda návrh na uzniesenie.
viceprimátor Štefánik: Najprv sme mali... Gabi Katona, ty si mal tiež pozmenujúci návrh? Alebo návrh na... Dobre, tak môžeme hlasovať najprv o tomto pozmenení, o tomto návrhu na nehlasovanie.

Primátor O. Klein: Nech sa páči, hlasujte. Za 7 poslancov proti 1.90 zdržalo 2 a nehlasovali. Návrh nebol schválený. Teraz by som poprosil hlasovať o pozmenujúcom návrhu pani poslankyne Bohátovej.
viceprimátor Štefánik: Heli, ty si tam mala 70 euro? ... Dobre, takže... ... ... Podmienky tak, ako sú tam uvedené aj s tým progresívnym zdaňovaním. Hlasovať o pozmenujúcom návrhu poslankyne Bohátovej, že minimálna cena by sa určila nie znaleckým posudkom, ale 70 euro a zábezpeka by bola 10 000 euro.

Primátor O. Klein: Nech sa páči, hlasujte o tomto návrhu. Ďakujem pekne za 8 poslancov. 10 sa zdržalo, 1 nehlasoval.
Primátor O. Klein: Poprosil by som návrh na uznesenie
viceprimátor Štefánik: Mestské zastupiteľstvo schváluje podmienky na uskutočenie troch obchodno-verejných súťaží podľa prílohy na uzavretie zmovy o budúcej kúpnej zmluve na časti parcely číslo 1918 znamená jedna zastávané plochy a nádvoria o výmere 65 550 m2 vedenej Okresným úradom Nové zámky katastrálny odborn na liste vlastníctva číslo 1 pre katastrálne územie Nové Zámky registri CKN za kúpnu cenu určenú znaleckým posudkom v zmysle paragrafu 9 odsah 2 písmeno B zákona číslo 138/1991 zbierky o majetku obcí vznenie neskorších predpisov podľa predlohy.
Primátor O. Klein: Nech sa páči, že hlasujte
viceprimátor Štefánik: že by ešte zmenili tú zábezpeku na 10 tisíc.
Primátor O. Klein: Nech sa páči zo zábezpekou na každý pozemok 10 tisíc eur.
Z pléna: A teraz o tom hlasujeme?
viceprimátor Štefánik: Takže ten návrh poslankyne Bohátovej neprešiel, tak dávam ešte jeden pozmeňujúci návrh, ospravedlňujem sa, na tú zábezpeku som zabudol, dávam pozmenujúci návrh že zábezpeku by sme dali na každý pozemok, zvlášť pri tých troch, 10 tisíc eur.

Primátor O. Klein: Nech sa páči hlasujte o tomto návrhu. Ďakujem pekne. Za 12 poslancov šiesti sa zdržali, jeden nehlasoval. Návrh bol schválený. Ešte...
viceprimátor Štefánik: Návrh na uznesenie. Mestne zastupiteľstvo schváluje podmienky na uskutočenie troch obchodno-verejných súťaží podľa prílohy na uzavretie zmluvy o budúcej kúpnej zmluve. Na časti parcely číslo 1918/1 zastavané plochy a nádvoria o výmere 65 053 m2 vedenej okresným úradom Nové zámky. Katastrálny odbor na LV číslo 1 pre k.ú. Nové Zámky v registri CKN za kúpnú cenu určenú znaleckým posudkom v zmysle paragrafu 9.2 písmeno B zákona číslo 138 zlomené 1991 zbierky o majetku obcí vznenie neskôrších predpisov podľa predlohy s tým, že podľa pozmenujúceho návrhu zábezpeka na každý z tých týchto troch pozemkov sa určuje na 10 000 eur.
Primátor O. Klein: Ďakujem pekne, poprosím hlasovať o tomto návrhu. Ďakujem pekne za 13 poslancov, dvaja proti, čtyria sa zdržali, návrh bol schválený.
Dejstvo druhé. 14. zasadnutie Mestského zastupiteľstva v Nových Zámkoch dňa 15.6.2016.
Ešte prebiehali pokusy predať parcely A, B, C keď bratranec primátororvej manželky (známy z neskoršej kauzy predaja parcely za Ajaxom - písali sme tu...) poslal na Mesto žiadosť o odpredaj druhej a väčšej časti pôvodne plánovaného sídliska Západ II/2 za účelom radovej výstavby. Ponúkol 18 eur/m², pričom zónová cena bola 60 eur/m². Mesto "kompromisne" navrhlo 25 eur/m² z dôvodu že už dvakrát nikto nekúpil susedné parcely A,B,C za 25 eur. Dohodnutý krúžok poslancov okolo primátora zdôrazňoval, že uvedené parcely nie je možné predať individuálnym záujemcom kvôli územnému plánu (ako by ho nebolo možné jediným hlasovaním zmeniť) . Na základe tohoto uznesenia sa uskutočnili dve VOS: 23.06.2016 a 6.10.2016. Prvého sa nezúčastnil nikto - zrejme žiadateľ čakal na spustenie ceny na pôvodne navrhovaných 18 Eur/m2 po 2. kole. Avšak do druhého kola sa prihlásila fy Prospect s.r.o. a s ponukou 26.10 Eur/m2 pozemok kúpila. Na rozdiel od pozemkov A.B,C tento pozemok pripravovaný pre bratranca neobsahoval žiadne poistky ohľadom termínu začatia a ukončenia stavby. O tom, že mesto predávalo tieto pozemky za 1/4 trhovej ceny sme sa dozvedeli neskôr - písali sme tu...
Video z zasadnutia MsZ NZ časť 3/4. Sledujte od 1:07:00
Primátor O. Klein: Ďalší bod číslo 20JUDr. Závodský: Na základe predloženej žiadosti, žiadatelia majú záujem vybudovať záhradné bytové domy s parkoviskami a s prispojenými cestami na časti pozemku na Andovskej ulici v súlade s platnou územnou plánovacou dokumentáciou a v zmysle technickej správy, ktorá je súčasťou návrhu.
Zároveň sa zaväzujú vybudovať oddychovú zónu vo forme parku a parkovisko prístupné širokej verejnosti. Ak dovolíte ctené mestské zastupiteľstvo, včera bol na mestský úrad dorúčený list tohto žiadatela, ktorý na základe toho, že si naštudoval podmienky súťaže, na základe ktorých sa v tejto lokalite už predávali pozemky a navrhol cenu 18 euro za meter štvorcový. Z tohto dôvodu sme pristúpili k vypracovaniu podmienok obchodno-verejnej súťaže, ktoré vám boli doručené v prebiehu zasadnutia mestského zastupiteľstva.
Primátor O. Klein: Poprosil by som stanovisko Mestskej rady.
viceprimátor L. Štefánik: Helena Bohatova bol spravodajca, keďže tu nie je tak, prečítam odporučenie Mestskej rady. Mestská rada odporučila Mestskému zastupiteľstvu schváliť spôsob prevodu týchto troch pozemkov, ktoré boli v pôvodnej žiadosti aj predaj.
Primátor O. Klein: Otváram rozpravu k tomuto bodu.
posl. G. Katona: Vážené dámy, vážené páni, je tu návrh na obchodno-verejnú súťaž na pozemky a ja tu mám pár otázok, ktoré by som poprosil zodpovedať v poradí, ako ich budem klásť. Toto sú tie pozemky, na ktorých bola plánovaná, alebo dotýkajú sa tieto pozemky časti, kde sa majú stavať bytovky?
JUDr. Závodský: Poviem to takto, nedotýkajú sa časti, na ktorej bola už opakovane vyhlásená neúspešná obchodno-verejná súťaž. Aj tam bola cena tých 25 eur.
Toto sú pozemky, ktoré idú od Pažitnej... Ako je Pažitná ulica, pán poslanec, ako viete, na Andovskej sú také 4 štvorbytovky a ide od tú časť smerom dopredu. Takže nejde od totožné pozemky, na ktoré už bola opakovane vyhlásená neúspešná obchodno-verejná súťaž.
posl. G. Katona: Dobre, tak z vzhľadom na to, ja by som mal pozmenujúci návrh teda, že buď túto obchodno-verejnú súťaž nevypísať a tieto pozemky aby mesto rozparcelovalo a vypísalo obchodnú súťaž tak, ako to chce vlastne developer, lebo developer je tu zrejmý, takže on chce kúpiť tieto pozemky len za účelom developingu, alebo pre prípad, že si osvojíme tento návrh, že teda vypíšeme obchodnú-verejnú súťaž v porovnaní s komerčnou cenou stavebných pozemkov na území mesta Nové Zámky. Konkrétne tu mám otvorený jeden inzerát, kde vychádza cena na 42 eur meter štvorcový. Nevidím absolútne dôvod, prečo by sme dávali my do predávania pozemky za 25 euro meter štvorcový. Vzhľadom na to dávam teda pozmenujúci návrh, aby minimálna cena bola najmenej 40 eurometer štvorcových.
Alebo aby sme zvážili, že to rozparcelujeme a my to predávame ako pozemky vhodné na zastávanie.
posl. I. Katona: Vychádzajúc z materiálov, ktoré sme teraz dostali, tých tlačených, tak tam sa opätovne vyskytol taký jemný nedostatok, že zastaviame časť pozemku a nevieme, ktorá časť pozemku to je. Ja si myslím, že by bolo v prvom prípade potrebné zodpovedať si otázku, či vôbec mesto chce, aby na zatiaľ neupresnenej časti pozemku boli vybudované záhradné bytové domy s parkoviskami a prístupovými cestami, respektíve bytová zastavba.
Lebo ak som si ja pozrel tú vytlačenú fotografiu, čo bola aj v prílohe, čo sme dostali mailom, pozvánky, ja mám pocit, že sa jedná o, môžem sa myliť, o klasickú radovú zastavbu. Ak sú to tie pozemky na tej Andovskej, tak tie boli koncom minulého režimu vyvlastnené a vlastníci rodinných domov boli na silu vysťahovaní a ich domy boli zburané, tak neviem, či by sme to mali takýmto spôsobom riešiť alebo nemali riešiť. Avšak zase v tomto návrhu som si všimol takú jednu veľmi zaujímavú vec, že uchádzač má predložiť návrh na uzavretie zmluvy.
Bude to v časti B.9. Návrh na ozavretie zmluvy musí byť navrhovateľom podpísaný. Ja nevidím súčasťou, aspoň ja nemám návrh na ozavretie zmluvy, ako by mal vyzerať a je dobrým zvykom pri väčšine zastupiteľstiev, že mesta si určujú a v obce si určujú tieto návrhy, ako to má vyzerať. Čiže troška to obráťme a skúšajme my dávať, lebo ak som to správne pochopil, možno, že nie, návrh na ozavretie zmluvy nám doručí ten navrhovateľ.
Tento jeho návrh musí byť podpísaný. Čo keď v návrhu na ozavretie zmluvy budú také veci, s čým nesúhlasíme? Alebo čo tam nie je uvedené? Hej, ako pani predložná hovorí, že dáme protinávrh, ale na čo má potom dorúčiť podpísaný? Ono to viac menej stráca zmysel. Ja si myslím, že vzhľadom k tomu, že ani nevieme presne povedať, na tej Andovskej, čo je relatívne dosť dlhá ulica na dobrom mieste, o ktoré pozemky sa jedná. Že bolo by zrejme namieste, tak, ako sme rozhodli, čo sa týka Nábrežnej, tam bol ten pozemok, tých 300, cca 400 m2. Týmto spôsobom aby sme naozaj nepostupovali a nezaviedli samých seba do nejakej nerežiteľnej situácie. A tento návrh, tak ako je predložený, či už to je za cenu 25 eur m2, alebo vyššiu cenu, neprijali. S tým, že zaoberať sa v trochu v šírších intenciách s tým, že či to naozaj chceme na tej Andovskej radovú zástavbu, alebo tam vybudujeme hromadnú bytovú zástavbu tak, ako na tie účely, ako to bolo za minulého režimu vyvlastnené, keď tí ľudia fakt museli nasílu odísť.
Primátor O. Klein: Ja by som len trošku upresnil, lebo sa nás to ako rodiny priamo týkalo. Nebolo to vyvlastnené, bolo to žiaľ vykúpené. Vieme za jakých podmienok smiešnych.
Územný plán nám tam presne určuje a diktuje, že akým spôsobom a čo sa v tej lokalite môže stavať. Nech sa páči, pán Závodský, chceli ste niečo ešte doplniť?
JUDr. Závodský: Áno, pán primátor, iba na upresnenie. Dovolím si zodpovedať otázky pána poslanca Katonu. Ako ste správne povedali, pán primátor, jednoducho územný plán tam definuje, čo sa tam môže stavať, za akých podmienok. To je jedna vec.
Druhá, ak si otvoríte pôvodný materiál, tak tam máte presne náčrt, ktorý ste v predchádzajúcich bodoch vyžadovali. Takže tam je presne definované, o ktoré parcely ide. Dokonca je to farebne. Strana 12 páni a panie poslankyne. K tomu, prečo má byť doručená zmluva, jednoducho dodržiavame obchodných zákonník a podmienky vypisovania obchodnoverejných súťazí, kde je jasne napísané, že sa doručuje návrh. To je návrh na uzavretie zmluvy čo hovoríte vy, páni poslanci, toto je obchodnoverejná súťaž.
To sú dve rozdielne inštitúty.
posl. G. Katona: Ja sa prikláňam k tomu názoru, dámy a páni, aby sme fakt nepredali to developerovi, aby mesto rozparcelovalo a dalo možnosť aj iným obyvateľom tohto mesta, aby mali možnosť si kúpiť stavebný pozemok a postaviť tam rodinný dom. A neurobiť to na biznis pre iného.
Ja si myslím, že mesto z tohto môže ďaleko viac vyťažiť, pokiaľ to rozčelí na menšie pozemky a tieto predá, ako keď sa to nechá takto v celosti, a tak sa to predá. 1"16"55
Primátor O. Klein: Tu je ale práve to, čo sme hovorili, že mesto to nemôže rozparcelovať a nemôžeme to ponúknúť žiaľ našim obyvateľom na individuálnu výstavbu. Toto je to, čím sme zviazaní. Lebo tento zámer, a čo je najväčší problém, my tam máme neustále podnetý od občanov, vieme, jak tá lokalita vyzerá a potrebujeme to nejakým spôsobom riešiť. Ale samozrejme, na druhej strane súhlasím s tým, čo hovorí pán Katona. Nech sa páči ešte pán Závodský k tomu.
JUDr. Závodský: Som chcel povedať, že my to nemôžeme prekvalifikovať na individuálnu bytovú výstavbu, keď v územnom pláne je hromadná. A ja tiež nepredpokladám, že nejaká fyzická osoba by bola schopná takýto projekt realizovať na vlastné účely
posl. I. Katona: Ja som myslel, že rokujeme o tomto návrhu, čo ste nám dali vytlačený. O tom rokujeme?
JUDr. Závodský: Áno, obchodno-verejnej súťaži.
posl. I. Katona: Lebo ste sa teraz odvolal na to, čo sa máme v elektronickej podobe, tak teraz o čom rokujeme?
JUDr. Závodský: Pán poslanec, je to to isté, obsah... Primátor: Je to to isté!
posl. I. Katona: Aby som dohovoril. Pokiaľ to je to isté - teda, že to máme vytlačené, pokiaľ sú dve rozdielne veci, tak rokujeme o dvoch rozdielných veciach.
JUDr. Závodský: Nie, pán poslanec...
posl. I. Katona: Áno, ja to mám pred sebou tú stranu, kde to je farebne znázornené, len ja som vychádzal z toho, že rokujeme o tomto. Tak sa vám ospravedlňujem, pokiaľ rokujeme o obidvoch naraz.
JUDr. Závodský: Nie, pán poslanec.
posl. I. Katona: V prípade, že má tam byť hromadná bytová výstavba, tak možno, že z nejakého stavebnotechnického hľadiska, ktoré ja nevylučujem, že je tak, sa táto radová zastáva možno považuje, alebo dá považovať za hromadnú bytovú výstavbu, a možno, že splní literu zákona. Viem si to predstaviť.
Len neviem, či to je tá hromadná bytová výstavba, ktorá sa v tej dobe myslela, ktorá by tam mala byť, a ktorá tam na tej Andovskej ulici prebieha, vzhľadom na tie mestské bytové domy, nájomné bytové domy, ktoré tam sú, či toto je dobrý nápad. Ja nehovorím, že to nie je dobrý nápad, ja sa len pýtam, či to je dobrý nápad, lebo mi to naozaj príde ako radová výstavba, ja je na tej Krížnej ulici, ale možno, že sa mýlim.
Primátor O. Klein: Ešte len toľko. Možno niektorí si nepamätáte, aký je tam plán. Momentálne tam predbieha výstavba 5 až možno 6 poschodových bytových jednotiek. A postupne ten rad má klesať až po tú ulicu Jeruzalemskú, po spodok, kde sa dostávame vlastne na úroveň jednoposchodových rodinných domov. Ale v tej lokalite, je to dané vyslovene, myslím si, že po dvoch poschodiach sa to znižuje smerom až k tým bývalým, neviem, či železničiarskym, alebo požiarnickym bytovkám. Áno, poštovym bytovkám. Presne tak smerom sa to znižuje k tým domom.
viceprimátor Štefánik: Skúsim to nejak celé zhrnúť a potom dať jeden pozmenujúci návrh. Lebo nám na zastupiteľstvo pôvodne bol predložený návrh na priamy odpredaj týchto troch pozemkov, alebo tohto pozemku 13 380 m2.Na stole máme návrh na vyhlásenie verejnej, alebo návrh podmienok obchodnej verejnej súťaže Andovská, ale keďže originál nám bolo predložený mestským úradom návrh na predaj, tak skúsim sa vrátiť ešte k tomu, že prečo je to návrh na verejnú obchodnú súťaž a prečo je to za tú cenu, za akú to je v tomto návrhu a potom by som tento návrh podmienok verejnej obchodnej súťaže dal ako pozmenujúci návrh k tomuto bodu s tým, že ak by bol schválený, tak potom by sme nehlasovali o predaji. Včera došiel na mestský úrad list od žiadateľov, že keď si pozreli materiály, malo by to byť podľa znaleckého posudku, alebo podľa zónovej ceny, ktorá je tu v tejto lokalite ak sa nemýlim 60 eur, tak oni ponúkli 18 eur a keďže sme s pánom Závodským o tomto hovorili, tak cena 25 eur vyšla z toho, minimálna cena 25 eur vyšla z toho, že tento rok sme sa už dvakrát pokúsili predať, keď si pozriete ten pôvodný materiál na strane 12, tak sme sa pokúsili predať vedľajšie pozemky rozparcelované na tri časti po 2600 m2, to znamená, že tri pozemky to je dokopy nejakých 7800 m2 a bolo to rozparcelované na tri časti, bolo to rozdelané na tri verejné obchodné súťaže, práve z toho dôvodu, ktorý ty si spomenul, Gabi Katona, aby to nebolo ponúknuté celé jednemu, možno nejakému väčšiemu investorovi, ale aby to bolo ponúknuté možno nejakým fyzickým osobám, ktorí by tam vedeli vystavať tie malé bytovky, aké boli v zámere. Bola prvá verejná obchodná súťaž, nikto sa do toho neprihlásil.
Potom bola znižená cena na 25 eur, presne pre takých ľudí, ako Gabi, ty si spomínal, nikto sa neprihlásil a potom na základe toho sme dali do návrhu podmienok verejnej obchodnej súťaže, samozrejme, môžeme rokovať aj alebo hlasovať o tvojom návrhu, 40 eur, na základe toho sme do podmienok verejnej obchodnej súťaže na tento celý pozemok, ktorý je priamo sisediací s tým pozemkom, ktorý bol predtým vo VOS, sme dali cenu 25 eur. Takisto nevieme tam robiť ani verejnú súťaž, ani priamy predaj a spraviť tam rodinné domy, lebo to nedovoluje územný plán a bolo to nie vyvlastnené, ako si hovoril Ivan, ale bolo to vykúpené pre individuálnu bytovú výstavbu a práve z toho všetkoho vyplýva ten návrh podmienok verejnej obchodnej súťaže za minimálnu cenu 25 eur, aby, z toho to vyplýva, že je tu záujemca, ktorý to chce, ale keďže asi to nechce za tú sumu z tých 60 eur, tak požiadal nižšiu, s ktorou my asi nesúhlasíme, lebo za 18 eur by to asi neprešlo a priammy predajom určite nie, tak preto návrhujeme tú sumu minimálne, ktorá bola v ostatnej verejnej obchodnej súťaži návrhnutá na vedľajšom pozemku presne v tej istej lokalite. Takže ja dávam pozmenujúci návrh, aby sme schválili návrh podmienok verejnej obchodnej súťaže VOS Andovská, podľa tej predlohy, ktorú máte, s tým, že ešte do tej do tej VOS-ky by sa tam priložila tá katastroálna mapka, ktorú máme na strane 12 pôvodného materiálu, kde je presne zakreslené, o ktorý pozemok sa jedná.
Ja tu mám na katastri teraz otvorený celý pozemok 1918/1. Je to pod jedným číslom a je tu presne zakreslené, že o ktorý pozemok sa jedná, ktorý žiadal ten investor. Takže na základe tohto bude vypísaná verejná obchodná súťaž a verím tomu, že keď sú aj iní záujemcovia, tak sa o to pobijú a pre mesto sa vysúťaží čo najlepšia cena, aby sme aj takto pokryli kapitálové príjmy, ktoré vieme, že je polrok a nemáme pokryté ani v polovičnej čiaske. Návrh dávam písomne.
posl. G. Katona: Práve vzhľadom na to, čo ste, pán viceprimátor povedali, že za 60 eur to predateľné nebolo a teraz ideme hneď na 21, to je podľa mňa...
viceprimátor Štefánik: Pán Gabriel Katona, ja môžem ešte raz? Ešte raz, prosím. Vychádzal som z toho, on tam písal, že to chce za 18 ale to je úplne jedno. 25 eur sme vychádzali z toho, že vedlajší pozemok tých 75 árov, teraz je v návrhu VOS 133 árov, to znamená 13380 m2 a predtým boli dve VOS-ky, kde v ostatnej druhej bol vedlajší úplne susediací pozemok ponúkaný za 25 eur m2, minimálna cena. Bolo to dokonca ponúkané pre takých ľudí, ako si ty spomínal, aby to nebol nejaký väčší investor, nikto sa neprihlásil. Určite nechcem ísť, alebo nechcem, aby sme išli pod túto cenu, ale keď dvakrát bola VOS-ka, nikto nekúpil menší pozemok za 25 eur, tak neverím, že teraz niekto kúpi za 60 dvakrát taký veľký pozemok.
posl. G. Katona: Dobre, a nezvažovalo sa rozdelenie pozemku tak, ak to je na tom návčrte, na červenú, žltú a zelenú časť? Že by išli osve? Nestíhalo sa?
viceprimátor Štefánik: Pozri, tento návrh, ktorý sme vypracovali podmienok verejného obchodného súťaže, vyplýva z toho, že keď sme tie 3 VOS-ky, to boli v podstate 3 VOS-ky na 3 pozemky po 25 eur po 2500 m2, ani na jednu VOS-ku sa neprihlásil ani jeden žiadateľ. To znamená, že buď neni záujem, alebo sa nenašiel investor, ktorý by jednotlivo investoval do takýchto malých pozemkov a preto chce vybudovať možno niečo väčšie, čo bude v súlade s územným plánom a bude tam nejaká individuálna bytová výstavba podľa toho nákresu, ktorý nám dal a preto to dávame ako podmienky verejného obchodného súťaže na jeden pozemok. Nechceme to členiť na 3, lebo máme s tým negatívnu skúsenosť a to sám môžeš... No takto to je, jednoducho.
Ja som v tej komisii, nikto sa neprihlásil už dvakrát. Keď toto sa schválí, tak minimálne budeme mať príjem do rozpočtu plus, mínus 300 tisíc euro a naplňujeme kapitálové príjmy tohto roku ešte nie celkom. Takže vychádzame len z nejakej skúsenosti, ktorá je veľmi čerstvá, ktorá vychádza z tohto roku.
posl. Valent: Ja myslím, že to, čo si povedal pán Štefanik, že má rácio, zopakoval si to dvakrát, netreba sa asi k tomu viacej vracať. Čo sa týka k tým procesným návrhom, ja chcem povedať len toľko, že obchodná verejná súťaž, tak, ako ju definuje obchodný zákonník v paragrafe 281 citujem "kto vyhlási neurčitým osobám súťaž, čiže vyhlasovateľ, on najvhodnejší návrh na uzavretie zmluvy, čiže obchodná verejná súťaž, robí tým výzvu na podávanie návrhov na uzavretie zmluvy ďalej, len ako návrh"
Čiže to, čo prikladá žiadateľ alebo teda záujemca, je návrh zmluvy a následne nasleduje rokovanie o tejto zmluve. Jednak to vychádza z obchodného zákonníka, že keď si vyhlásovateľ vymieni, môže meniť, rušiť a tak ďalej podmienky súťaže. Je to v obchodnej verejnej súťaži predmetnej veci zahrnuté v bode 7 časti C, čiže je to ošetrené, ale hovorím tak, jak to chápe obchodný zákonník obchodnú verejnú súťaž, ten návrh zmluvy je návrhom, čiže o návrhu sa ďalej rokuje a síce podstatné veci určite sa nedajú meniť, ale zmluva ako taká sa meniť dá. Toto som chcel na ozrejmenie.
Primátor O. Klein: Poprosil by som pozmeňujúci návrh pána Katonu.
viceprimátor Štefánik: Ak môžem, predniesiem obidva pozmeniujúce návrhy. Prvý pozmeňujúci návrh pána Katonu vychádza asi z toho istého, z čoho aj môj, že by sme neschvaľovali priamy predaj tohto pozemku, ale že by sme vyhlásili, alebo dali by sme návrh na podmienky obchodnej verejnej súťaže tak, ako nám boli predložené s malou zmenou, že minimálna cena by nebola 25 eur, ale 40 eur.
Primátor O. Klein: Poprosím hlasovať o tomto návrhu. Ďakujem pekne. Za 6 poslancov 13 poslancov sa zdržalo, jeden poslanec nehlasoval. Poprosil by som druhý návrh na uznesenie.

viceprimátor Štefánik: Predniesol by som môj, v podstate pozmeňujúci návrh, ale keď tento návrh schválime, tak už an-block nemusíme hlasovať, lebo o tom predají sa hlasovať nebude. Takže v rámci tohto bodu by sme hlasovali o návrhu podmienok verejnej obchodnej súťaže tak, ako nám boli predložené v písomnej forme na dnešnom rokovaní s tou pripomienkou, že ešte sa tam doplní zakreslená katastrálna mapa s tým presným zakreslením, ako to bolo aj v pôvodnom návrhu na predaj v tých 13 380 m2, aby to bolo presne definované s tou sumou, ktorá je v tom návrhu daná a to je minimálna cena 25 euro.
Primátor O. Klein: Poprosil by som hlasovať o tomto návrhu. Za 15 poslancov zdržali sa 5 poslanci. Návrh bol schválený
Dejstvo tretie. 22. zasadnutie Mestského zastupiteľstva v Nových Zámkoch dňa 24.8.2017
Tretie dejstvo bolo vlastne reakciou na neúspešné pokusy predať parcely A,B,C s korupčnou poistkou, keď sa zrejme našiel záujemca ktorý bol ochotný vyjsť v ústrety primátorovi. Z parciel A,B,C po dejstve 2 zostalo 5000 m2 a tie sa predávali v tejto tranži. Už 31.8. bola vypísaná VOS, ktorú vyhrala komárňanská firma IMMO-MEM s ponukou 30,33 Eur/m2. Zmluva obsahovala obvyklú korupčnú poistku - 18/36 mesiacov, z ktorej primátor v najväčšej tichosti v januári 2019 kupujúceho vyviazal, keď 12.10.2018 si viceprimátor Štefánik obstaral luxusný byt so strešnou terasou v developerskom projekte rovnakého podnikateľa písali sme tu...
Video časť 1/1 od 1:17:30
Primátor O. Klein: Ďalším materiálom je bod číslo 12. Návrh nakladanie znehnutelným majetkom mesta.OVS, pozemky Andovská. Nech sa páči pán Závodský.
JUDr. Závodský: Ďakujem pekne za slovo, pán primátor.
Vážení pani poslanky, nevážení pani poslanci, dovolte by som v mene majetkoprávneho odboru predložil na schválenie návrh podmienok obchodno-verejnej súťaže na uzavretie kúpnej zmluvy na časti parcely, tak ako to máte uvedené v predložených materiáloch, za účelom vybudovania bytových domov. Na základe predchádzajúcich uzniesení Mestského zastupiteľstva Mesta NZ boli v predmetnej veci opakovane vyhlásene obchodno-verejné súťaže na uzavretie budúcej kúpnej zmluvy. Nakolko sa do súťaže nikto neprihlásil, návrhujeme zjednodušiť podmienky v zmysle prílohy.
posl. Valent: Mestská rada prerokovala návrh nakladania z nehnuteľným majetkom mesta OVS Pozemky Andovská a odporúča Mestskému zastupiteľstvu schváliť návrh podľa predlohy.
Primátor O. Klein: Ďakujem pekne, otváram rozprávu k tomuto bodu.
posl. Prešinský: Rád by som sa opýtal predkladateľa tohto návrhu na základe, čoho sa dopracoval k predajnej sume 25 eur za m2, keď v zmysle uznesenia Mestského zastupiteľstva číslo 367/290909 doplnené uznesením Mestského zastupiteľstva číslo 358/101213 by mala byť stanovená cena 35 eur za m2, nakoľko sa jedná o pozemok s rozlohou nad 500 m2. To naozaj chceme takto šafári s mestskými pozemkami?
Nakoľko je tento návrh už od základu zlý, podávam návrh na jeho stiahnutie z rokovania. Ďakujem.
JUDr. Závodský: Vážený pán poslanec, správne ste citovali aj to uznesenie, ja sa ospravedlňujem, momentálne ho nemám pri sebe, ale cena v zmysle tohto uznesenia je 25 eur, rovnako sa postupovalo aj pri výstavbe ostatných bytových domov, ktoré sa v tej lokalite vybudovali aj v minulosti a konalo sa na podklade toho uznesenia.
Primátor O. Klein: Čo sa týka návrhu na stiahnutie tohto bodu, nie som predsvedčený, že to môžeme urobiť, ale môžeme dať nejaký návrh na uznesenie, ktorý pán poslanec prípadne písomne odovzdá.
posl. Prešinský: xxx doplnené uznesením MsZ atď. je jasne napísané, že pozemky s rozlohou nad 500 m2 2. zóna 35 Eur/m2
Primátor O. Klein: Áno to sú zónové ceny, ale na predošlých mestských zastupiteľstvách konkrétne sa predávali už tieto pozemky a ak sa nemýlim nejakých 18 tisíc m2 a tam tiež mestské zastupiteľstvo znižovalo túto cenu na úroveň 25 na základe ktorej bola vyhlásená súťaž. Nech sa páči, doplní JUDr. Závodský
JUDr. Závodský: Ďakujem pekne, ale jedna poznámka. Treba rozlišovať medzi pozemkami a medzi pozemkami určenými na hromadnú bytovú výstavbu, pričom sa vychádza z toho, že je záujmo mesta budovať a stávať obytné doby pre obyvateľov miesta.
posl. Prešinský: xxx pre individuálnu aj hromadnú bytovú výstavbu. To je pre obidva typy stavieb. A je tam druhá zóna, 35 eur za m2 nad 500 metrov.
Primátor O. Klein: Konkrétne inač tento pozemok prvýkrát, ak sa dobre pamätám, ešte v roku 2012-2013-2014 sa predával za 60 eur. Predával sa takto aj v 2015-2016. Myslím, že na základe rozhodnutia mestského zastúpiteľstva sa postupne tá suma znižovala. Nie som si ale úplne presne istý, že kedy v ktorom období to bolo.
posl. Bohátová: Ja som sa chcela spýtať predkladateľa tohto materiálu. Táto verejná súťaž sa predkladá druhýkrát, tretíkrát alebo koľký - aké boli ceny predtým uvedené? Myslím si, že tento materiál nemáme prvýkrát na rokovaní zastúpiteľstva.
JUDr. Závodský: Tento materiál je už predkladaný minimálne tretíkrát. Súťaž sme naposledy vypísali v tomto mesiaci s tým, že ani jeden zaujemca nepriavil ani záujem sa o to informovať.
A ešte doplním. Táto lokalita Andovská je špecifická. Tam existuje uznesenie v zmysle, ktorého sa tieto pozemky vždy predávali za 25 eur od roku 1999, kedy sa tá výstavba začínala.
Tak bola cena stanovená. V zmysle z tejto ceny bolo vyhlásené verejné obstarávanie, ktoré vyhrala jedna stavebná firma. A vlastne aj preto pokračujeme v tej cene.
A doplním, že ide o hromadnú bytovú výstavbu ešte raz.
posl. Török: Ja si myslím, že Mesto Nové Zámky, resp. poslanecký zbor, má právo hlasovať o tom, že stanoví nejakú minimálnu cenu, kúpnu cenu vo verejnej súťaži. Keď má záujem o to, aby sa určitá lokalita zveľadila a vybudovala tam, vybudovali tam konkrétne byty. Jedná sa, a vieme dobre, že od takú lokalitu, ktorá už vyše 20 rokov je tam nevyužitá. Tá lokalita, tam boli vykúpené pozemky od vlastníkov, ktorí tam mali rodinné domy s tým, že tam bude následná hromadná bytová výstava. Takže ja si rozhodne podporujem takú myšlienku alebo toto uznesenie, s čým by sa mohla tá lokalita dobudovať a tým pádom zlikvidovať také priestory, kde proste rastie burina, skrývajú sa tam nejaké živly, ktoré tam robia neporiadok. Takže rozhodne mám za to, že treba tento materiál osúhlasiť. A mestské zastupíteľstvo má právo, aby odsúhlasilo minimálnu kúpnúcemu 25 eur.
Primátor O. Klein: Poprosil by som návrh na uznesenie.
posl. Kyseli: (číta návrh na uznesenie od posl. Prešinského) Pozmejujúci návrh pána Prešinského. Mestské zastupíteľstvo návrhuje stiahnutie bodu 12 z zrokovania mestského zastupíteľstva, nakoľko je stanovená zlá cena pozemku. Podľa uznesenia mestského zastupia číslo 367/290909 v doplnení uznesením číslo 358/101 213 by mala byť stanovená cena 35 eur za m2. Podávam návrh na stiahnutie. Ďakujem pekne
.
Primátor O. Klein: Poprosil by som hlasovať o tomto návrhu. Ďakujem pekne za dvaja poslanci proti jeden poslanec. Šesť poslancov sa zdržalo, desať poslancov nehlasovalo. Poprosil by som ďalší návrh na uznesenie.
posl. Török (číta návrh uznesenia podľa predlohy, hlasuje sa o dvoch uzneseniach)

V skutočnosti mal tento príbeh i štvrté dejstvo, ktoré sa odohralo v júli 2024, ale o ňom sme už písali v článku Ako primátor so svojim krúžkom rozhodli o predaji dôležitej mestskej parcely, znemožnili výstavbu opatrovateľského centra a poškodili mesto o najmenej 200 tisíc Eur...


